
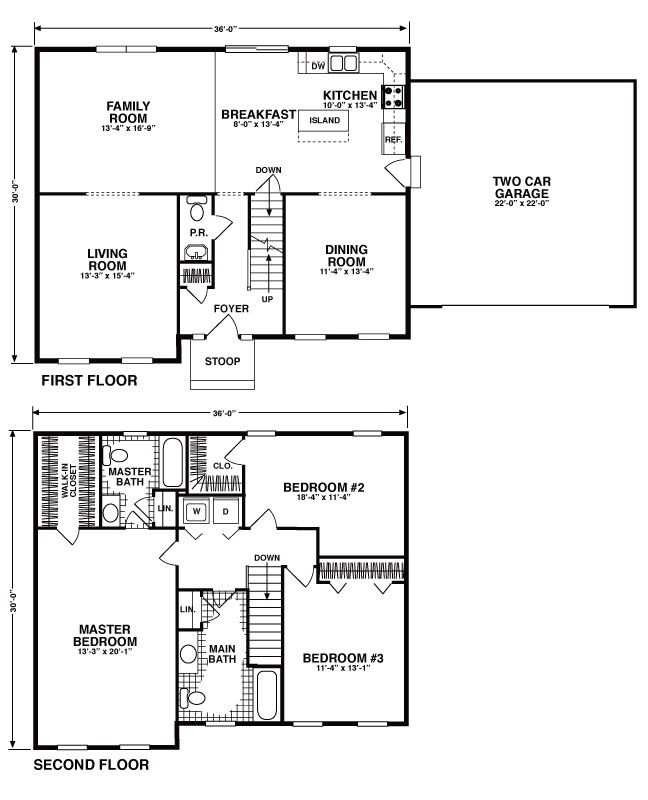
- Traditional colonial combines beautiful styling of yesterday with today’s requirements for comfortable living
- Open stairway and ideal center hall design
- Rear kitchen and breakfast nook open to family room
- Huge walk-in closet and private bath
- Front or side load garage
- Great curb appeal
- See also Bedford A and Bedford C

