Skip to content
Heritage Homes LTD
Home
Why Heritage Homes ?
Home Models
The Regency II
The Regency I
The Prescott
The Nantucket
The Montdale
The Monroe
The Middlebury
The Medford
The Mayfield
The Mansfield
The Lincoln
The Inverness II
The Lakeside
The Inverness I
The Hamilton
The Glenburn
The Gettysburg
The Deerfield
The Country Squire
The Country Ranch
The Brookhaven
The Beechwood
The Brentwood
The Bedford C
The Bedford B
The Bedford
The Arlington
The Springhill
The Westbrook
The Westbury
The Springbrook
The Oakmont
Gallery
What’s included in your Heritage Home?
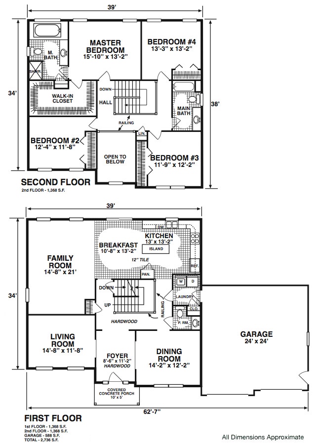
The Middlebury
Two story foyer with stairway
Gourmet kitchen with island
Master bath with whirlpool tub and separate shower
4 bedroom two story
2 car garage
Covered front porch
W.I. master bedroom closet
Loading Comments...
Write a Comment...
Email (Required)
Name (Required)
Website
Subscribe
Subscribed
Heritage Homes LTD
Sign me up
Already have a WordPress.com account?
Log in now.
Heritage Homes LTD
Subscribe
Subscribed
Sign up
Log in
Copy shortlink
Report this content
View post in Reader
Manage subscriptions
Collapse this bar