
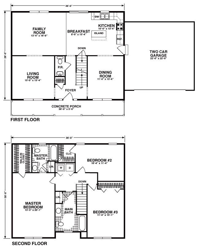
- Traditional colonial styling combines beautiful styling of yesterday with today’s requirements for comfortable living
- Open stairway and ideal center hall design
- Luxurious second floor master suite with huge walk-in closet and super bath
- Second full bath serves the other bedrooms
- Front or side load garage
- See also Bedford A and Bedford B

