
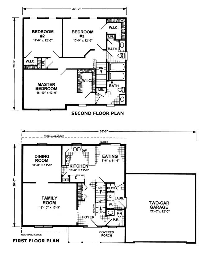
- Spacious 2-story, combining colonial and contemporary architecture
- Covered porch opens to large foyer
- Full bath services secondary bedrooms
- Abundant closet space throughout
- Front or side load garage
- Four elevations to choose from
- Laundry room, closet and powder room ideally located and open to covered porch

