Skip to content
Heritage Homes LTD
Home
Why Heritage Homes ?
Home Models
The Regency II
The Regency I
The Prescott
The Nantucket
The Montdale
The Monroe
The Middlebury
The Medford
The Mayfield
The Mansfield
The Lincoln
The Inverness II
The Lakeside
The Inverness I
The Hamilton
The Glenburn
The Gettysburg
The Deerfield
The Country Squire
The Country Ranch
The Brookhaven
The Beechwood
The Brentwood
The Bedford C
The Bedford B
The Bedford
The Arlington
The Springhill
The Westbrook
The Westbury
The Springbrook
The Oakmont
Gallery
What’s included in your Heritage Home?
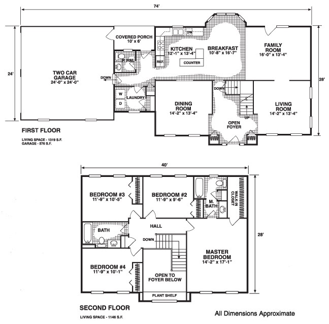
The Regency II
Two-story foyer with balcony overlook
Large Andersen springline window above front entrance
Traffic-free formal living and dining rooms
Garage can be front or side entry
Same features as
Regency I
Loading Comments...
Write a Comment...
Email (Required)
Name (Required)
Website
Subscribe
Subscribed
Heritage Homes LTD
Sign me up
Already have a WordPress.com account?
Log in now.
Heritage Homes LTD
Subscribe
Subscribed
Sign up
Log in
Copy shortlink
Report this content
View post in Reader
Manage subscriptions
Collapse this bar