
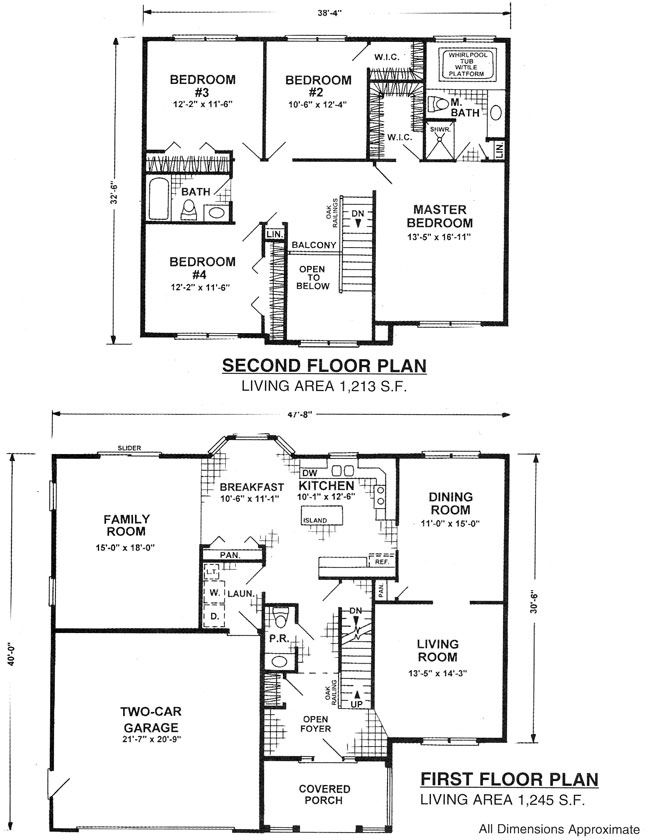
- 4 bedroom two story
- 2 car garage
- Covered front porch
- Two story foyer with oak stairway
- Gourmet kitchen with island
- Master bath with whirlpool tub and separate shower
- W.I. master bedroom closet
- Butler pantry in dining room
- First floor laundry room
- Traffic free family room
- Walk out bay in breakfast area
- Pantry closet in kitchen/breakfast area

