
- Ever-popular traditional beauty
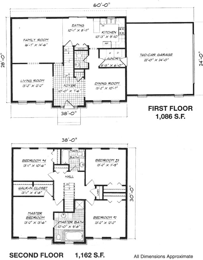
- Classic central floor plan
- 3 car side entry garage
- Choice of walk-out bay in either family room or breakfast area
- Pantry closet in kitchen/breakfast area
- Luxury master suite with whirlpool tub and separate shower
- 3 spacious secondary bedrooms share second full bath upstairs
- Front or side load garage
- Brick front

